高密度都市圈非机动车运输特征分析
在中国:广州的案例研究
马英英,博士1;曾英泽,博士2
1华南理工大学,广州武山路381号,中国广州510641。电子邮件:mayingying@scut.edu.cn
2广州市城市规划设计研究所,25楼,广州建设大马路10号,广州510060。电子邮件:zyclear@126.com
摘要
以人口稠密的中国第三大城市广州为例,通过问卷调查和实地观察分别收集运行数据。接下来从宏观和微观两方面,分析了非机动运输的特征。 在宏观层面,考察了出行目的、出行频率、出行距离等基本需求特征,以及出行方式、出行持续时间、出行意向等出行方式选择特征;并在微观层面,对交通流量和速度进行了观察和分析。 最后,研究了非机动交通特性与土地利用和设施之间的关系。 最后,对大城市地区非机动交通发展中的几个问题进行了探讨,并提出了一些应该考虑的要点。
引言
交通是城市的基本功能之一,是城市发展的命脉。城市交通系统与人们生活方式的关系空前强烈,并相互影响深刻。一方面,随着私家车的广泛使用,不仅满足了人们更大的出行需求,同时也带来了交通拥堵、交通安全问题和交通排放等巨大挑战。另一方面,更高的生活水平带来了更全面的出行需求,对效率、安全、舒适、环境保护和健康的要求也更高。这一现象急剧发生在经济发达和人口稠密的大都市区,特别是正在经历高速城市化的中国(2011年城市化率高于50%)(中国国家统计局,2012年)。
现在,越来越多的人认识到发展低碳运输是应对上述挑战和实现环境可持续发展的前提。现在有必要优先考虑公共交通和非机动交通(NMT)。自21世纪初以来,包括中国在内的许多国家启动了促进公共交通和非机动交通发展的计划(亚洲城市中心清洁空气倡议,2009年)。在最近的研究中,一些研究人员侧重于NMT出行选择与基础设施改善之间的关系(Khan,2014年)(Wang,2015年)(Tiwari,出版)。作为基础,非机动运输的特性分析尤为重要。这将有助于找出发展中存在的主要问题,也有助于制定有效的对策。本研究以广州为例,探讨了我国高密度都市圈非
机动交通的特点及发展问题。
数据采集
出行需求数据和交通运行数据是特征分析的基础。本研究采用问卷调查法和实地调查法分别收集了广州市中心城市的两类数据。
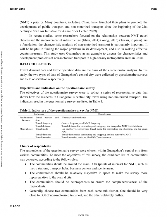
问卷调查的目标和指标
问卷调查的目的是收集一系列代表性数据,显示广州中心城市居民如何使用非机动交通出行。调查问卷中使用的指标列于表1。
表1.NMT问卷调查指标
|
指标 |
描述 |
|
|
基本需求 |
出行目的和次数 |
平日或周末 |
|
出行频率 |
一般出行的频率和使用非机动车出行的频率 |
|
|
出行距离 |
上下班和购物的出行距离以及可接受的非机动车出行距离 |
|
|
方式选择 |
出行方式 |
汽车和自行车的所有权,上下班购物的出行方式以及特定感兴趣的出行方式 |
|
出行时间 |
上下班和购物的出行时间以及非机动车方式出行的比例 |
|
|
出行意向 |
理想情况下使用非机动车方式出行的意向 |
|
受访者的选择
问卷调查的受访者是从广州中心城市的各个社区中选出的。为了实现本次调查的目标,根据以下规则生成候选人社区名单:
bull; 社区应围绕着NMT的主要兴趣点,如地铁站、交通枢纽、商业中心和风景区。
bull; 社区应在空间上相对分散,以使调查的中心城市更有代表性。
bull; 社区应是不同的,以确保答卷人的全面性。
bull; 通常,从每个相同的分区中选择两个社区。一个应该非常接近非机动运输的POI,另一个应该比较远.
选取11个不同分区的20个社区作为候选社区进行问卷调查。这些社区分散在广州的天河区、越秀区、六湾区、海珠区和白云区5个中心区。向每个社区分发了200份问卷,共计4000份。回收率为79.75%,共收集有效问卷3190份。
实地观察的目标和指标
实地观察的目的是收集一系列具有代表性的数据,说明广州中心城市的非机动交通系统是如何运作的。实地观察采用多种方法,包括人工计数、测量、现场骑乘和录像,以收集交通流量和速度的指标,如表2所示。
表2.NMT实地观测指标
|
指标 |
描述 |
|
|
交通流 |
道路行人流量 |
不同路段、不同地区的繁忙时间以及非繁忙时间流量 |
|
道路自行车流量 |
||
|
地铁出口行人流量 |
繁忙时间以及非繁忙时间流量 |
|
|
交通速度 |
行人速度 |
通过监控设备在不同的道路上采集大量样本 |
|
自行车速度 |
在不同条件下通过路段的多区域骑行 |
|
观察地点的选择
交通流观测地点选自广州市中心一些典型的高密度区域。为了实现本次调查的目标,根据以下规则生成候选人典型地区名单:
bull; 这些地区应该有高密度住宅区和对NMT的主要需求。
bull; 这些地区应该有大型商业区,对NMT有巨大的吸引力。
bull; 这些地区应设有地铁站或多条干线公交线路以及公共交通的主要出行需求。
bull; 这些领域应该具有NMT的突出问题以及改善NMT环境的主要潜力。
选定两个地区作为实地观察的候选区域。其中一个在天河北地区有两个地铁站(图1),另一个在赤岗-克尔地区有一个地铁换乘站(图2)。行人和自行车流的观测地点如图3和图4所示。
图1.天河北地区的典型区域
图2.赤岗 - 克村地区的典型区域
为考察道路状况对自行车行驶速度的影响,选取天河北路和中山大道两条走廊的4个路段作为观测对象。 第一条走廊的西段和第二条走廊的东段为骑自行车者提供舒适的道路条件,而其他路段则没有。
图3.天河北地区的流量观测站点
图4.赤岗 - 克村地区的流量观测点
宏观特征分析
根据调查问卷收集的数据,这些指标的统计结果见表3。
表3.NMT问卷调查指标的统计结果
|
出行目的 |
通勤 |
购物 |
学校接送 |
娱乐 |
运动 |
其他 |
|
平日 |
67.0% |
16.1% |
7.3% |
3.5% |
2.2% |
3.9% |
|
周末 |
13.0% |
27.5% |
5.7% |
36.8% |
7.1% |
9.9% |
|
出行方式 |
汽车 |
出租车 |
步行 公共交通 |
自行车 公共交通 |
自行车 |
步行 |
|
一般情况 |
11.2% |
3.3% |
59.8% |
8.9% |
5.9% |
10.9% |
|
上下班 |
13.6% |
5.2% |
50.5% |
7.6% |
8.3% |
14.8% |
|
日常购物 |
7.4% |
7.9% |
38.8% |
6.5% |
9.2% |
30.2% |
|
根据兴趣 |
5.2%-20.4% |
2.2%-3.0% |
60.5%-74.6% |
8.9%-13.2% |
1.4%-4.5% |
0.7% |
|
出行时间 |
高峰时间 |
上午 |
下午 |
其他 |
拥有车辆比例 |
|
|
平日 |
62.3% |
25.0% |
4.7% |
8.0% |
汽车 |
自行车 |
|
周末 |
26.5% |
27.7% |
23.6% |
22.2% |
12.7% |
36.7% |
|
出行频率 |
gt;2 |
2 |
2 |
lt;1 |
出行意向 |
|
|
每天 |
40.0% |
42.5% |
13.8% |
3.7% |
是 |
否 |
|
每天(自行车) |
15.7% |
20.7% |
11.8% |
51.8% |
更多使用非机动车出行 |
|
|
每天(步行) |
26.0% |
38.2% |
19.0% |
16.8% |
85.3% |
14.7% |
|
出行距离 |
lt;2km |
2-5km |
5-10km |
gt;10km |
骑自行车 PT为主要出行方式 |
|
|
上下班 |
42.2% |
28.2% |
19.8% |
9.8% |
69.1% |
30.9% |
|
日常购物 |
58.2% |
28.4% |
9.5% |
3.9%<!--
英语原文共 14 页 |
||


